發表時間: 2024-04-23 09:03:13
作者: 石油化工設備維護與檢修網
瀏覽: 3240
一、管道等級分界
由于設計溫度和壓力以及介質性質的改變引起管系管道等級或管道材質的改變,管道等級分界就是用來表達這種改變介面的位置。


A、B、C三種情況通常材料相同只是管道等級不一樣,分界點處的法蘭、緊固件和墊片,按高等級選用即可。D種情況則材料通常有變化,法蘭的壓力等級按高等級選用,法蘭、緊固件和墊片的材質按低等級選用。
二、管道的吹掃
管道吹掃有固定和半固定兩種方式,一般都表示在P&ID上。當P&ID上無表示時,應符合下列規定。
①一般工藝管道的固定吹掃接管方式如圖4.2.2-1所示。

②半固定式吹掃接管視介質情況而定。劇毒、液化烴類采用雙閥如圖4.2.2-2A、C,一般介質用單閥如圖4.2.2-2B、D.

三、排液與放氣
工藝過程需要的管道排液與放氣應按P&ID的要求進行安裝,但管道布置中不可避免的液 袋和氣袋,應按下述要求設置排液口和放氣口。長BOSS均按L=120mm計。
①放空
不進行水壓試驗的管道和公稱直徑DN≤40的工藝及公用工程管道的高點可不設置放空口,其余管道高點均需設置放空。放空的基本形式見圖4.2.3-1。
②排液
所有管道的低點均應設置排液口,排液的基本形式見圖4.2.3-2。原料油,油漿等高粘度介質排液管道公稱直徑不得小于DN25,其余排液管道公稱直徑不得小于DN20。
設備本體有關儀表排液均應引至相應排液漏斗;除凈化風和非凈化風管道外,地面上泵、閥組排液管線(包括立管閥門上部排液)均應引至附近邊溝;構架上閥組的管道排液管線(包括立管閥門上部排液)均應引至相應排液漏斗,且排液總管需引至構架地面邊溝。
③工藝及公用工程管道
特別是高溫高壓管道上的放空閥可用盲法蘭代替. 一般工藝管道排液、放氣口設一道閥. 液化烴、毒性介質管道和高壓管道均設雙閥,或一道閥加盲板。高點放氣,低點排液安裝位置應在物料流向的下游。與主管連接的管段應最小。
四、管道坡度
架空敷設的火炬總管及埋地敷設的重力流管道(如含油污水管道、污油管道)應坡向火炬罐或污油(水)回收設施,其坡度要求應符合下列要求:
①火矩管道: 坡度為1-3/1000
②埋地管道: 坡度最小為3/1000
③其他P&ID圖上特別要求的管道按P&ID圖的要求設計(如:汽包返回管道)

五、管道間距
①并排敷設的管道最小間距在考慮隔熱層厚度后取50mm,當管道上安裝有法蘭時,其法蘭外緣與相鄰管子的最小凈空取25mm。
②閥門手輪最小間距:DN≥80 MIN100; DN≤50 MIN50。
③管道穿越平臺時距開洞邊凈空最小取25mm,開洞邊緣設置防水圈。
④計算管道間距時必須考慮管位移及其方向。
六、管道凈高和埋設深度
①在人員通行處管道底部的凈高不宜小于2.1m,需通行車輛處,管底的凈高視車輛的類型有所不同,通行小型檢修機械或車輛時不宜小于3.0m,通行大型檢修機械或車輛時不應小于4.5m.
②埋地管道的埋深,一般區域為管頂距地表不小于0.3m,通行機械車輛的通道下,不小于0.75m或采用套管保護,套管管頂距地表不小于0.3m。套管的直徑宜比被保護管大二級。被保護管在套管范圍內不應有焊縫. 埋地管道有閥門者應設閥井。大型閥井應考慮操作和檢修人員能到井下作業。小型閥井可只考慮人員在閥井外操作閥門的可能性。
③采用管溝敷設時,溝低應有不小于2%的坡度。管溝內預先埋設型鋼支架,支架頂面距溝底不小0.2m,對于管底裝有排液閥者,管溝與管底之間凈空應能滿足排液閥的安裝與操作。管溝內有隔熱層的管道應設管托。溝內管間距應比架空管道適當加大。
七、采樣管道的布置
采樣管用于取出管中流體進行分析,采樣的形式應符合P&ID的要求,采樣點應設置在便于通行方便操作的地方。采樣管應盡量短,且不得從管道上的死區引出,以減少管內流體滯留。就地采樣第一道閥等級隨主管,閥后變為不銹鋼。
①氣體管道上采樣管的引出
對于氣體管道上的取樣口,當設置在水平管道上時應在管道頂部,當設置在立管上時,取樣口應向上傾斜45°;含有固體顆粒的氣體管道上的取樣口應設在立管上,并將取樣管深入管道的中心。
②液體管道上采樣管的引出
對于液體管道上的取樣口,壓力輸送的水平管道上可設置在任意部位,自流水平管道應設置在管道底部,液體中含有固體顆粒時應設置在管道的側面;當設置在立管上時宜設在介質向上流動的管段上。
③采樣管上切斷閥及采樣閥的安裝位置
a 采樣管切斷閥距引出點超過3m時,應在距引出點最近的地方安裝根部閥,此管長不得大于8m。
b 樣品出口管端與漏斗地面或平臺之間應至少有300mm的凈空,以安放取樣器皿。
④采樣管道布置的基本形式見典型圖(設計手冊和上述技術規定有關條款)。
管廊的布置
一、管廊的形狀
管廊的形狀由設備的平面布置決定,一端式和直通式是管廊的基本形狀,其他如L型、T型、U型等及形狀較復雜的管廊,可視為幾個基本形狀的組合。

二、管廊的長度
· 管廊長度由設備數量和尺寸決定
· 一般過程工業裝置的設備(換熱設備、冷卻器、塔、容器、露天壓縮機、泵等)每臺可按平均占用3m長管廊估計。布置得當,可壓縮到2.1-2.4m。
· 通常設備和車間應在管廊兩側布置,不能布置在一側
· 擴建需預留的位置應該放在管廊端部
三、管廊的高度

(1)橫穿道路上空:次要道路4.5;主要道路6m以上;鐵路7m以上;檢修通道的凈高不小于3.1m。
(2)下部設備高度:泵周圍至少需要2.5m;換熱器上5.5m;管廊上管道與設備相連時,最小凈高為3.5m。
(3)考慮橫梁結構和斷面型式:對于雙層管廊,上下層間距為1-1.5m。
(4)裝置間管廊高度,需考慮跨越區域,全廠采用一個標準,與其他裝置協調。

四、管廊的寬度
管廊的寬度主要由管子根數和管徑大小決定(最密集處),并加一定的余量(20%)。同時考慮:
(1)管廊下設備和通道。
(2)管間距:不同文獻規范計算方法不同。
一般管廊寬度為6-10m,超過9m采用部分或全部雙層管廊。
五、管架結構
有單柱管架和雙柱管架之分。寬度規定,單柱管架寬度系類為0.5、1、1.5、2、3米;雙柱管架寬度系列為3、4、6、8米。采用單根鋼管或者鋼筋混凝土立柱加鋼梁結構,大型采用鋼筋混凝土框架結構。



六、管廊的柱距和管架的跨距
(1)管廊的柱距與管架的跨距由敷設在其上的管道所產生的彎曲應力和撓度決定;
(2)管廊的柱距和管架的跨距由敷設在其上的最小管子的允許跨度或用多數管子的允許跨度確定。
管架的跨距用6-8m,DN40以下的管道用3-4m。

管廊上的管道布置
管廊上敷設的管道種類有以下幾種:
工藝管道、公用工程管道、儀表管道和電纜。

管廊上管道布置方法:
· 考慮管徑大小因素:大口徑管道盡量靠近管廊柱子,單柱管架管道均勻布置在管架柱子兩側。
· 考慮設備位置因素:與相連接的設備相適應,公用工程管道布置在中央。
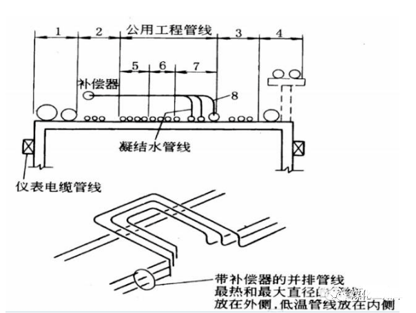
· 考慮被輸送物料的性質因素:低溫管、不宜受熱管與熱管道分開布置,腐蝕性介質敷設在下層。
· 考慮熱應力的影響:高溫管道、常溫管道按吹掃介質溫度考慮熱膨脹量、高溫大口徑在外側。
· 考慮儀表管道、動力電纜的安全:工藝區敷設地下電纜,有腐蝕性液體滲入的地方,采用架空槽板敷設,儀表管線同電纜一起考慮。電纜不允許布置在熱管到附近或者輸送腐蝕性介質下方,一般敷設在管廊走道的下面或者管廊柱子外側。



裝置中主管廊寬度跨度和高度
(1)管廊的寬度:
1)管廊的寬度主要由管道的數量和管徑的大小確定。并考慮一定的預留的寬度,一般主管廊管架應留有10%-20%的余量,并考慮其荷重。同時要考慮管廊下設備和通道以及管廊上空冷設備等結構的影響。如果要求敷設儀表電纜槽架和電力電纜槽架,還應考慮其所需的寬度。管廊上管道可以布置成單層或雙層,必要時也可布置三層。管廊的寬度一般不宜大于10m;
2)管廊上布置空冷器時,支柱跨距宜與空冷器的間距尺寸相同,以使管廊立柱與空冷器支柱中心線對齊;
3)管廊下布置泵時,應考慮泵的布置及其所需操作和檢修通道的寬度。如果泵的驅動機用電纜為地下敷設時,還應考慮電纜溝所需寬度。此外,還要考慮泵用冷卻水管道和排水管道的干管所需寬度;
4)由于整個管廊的管道布置密度并不相同,通常在首尾段管廊的管道數量較少。因此,在必要時可以減小首尾段管廊的寬度或將雙層管廊變單層管廊。
(2)管廊的跨度:
管廊的柱距和省廊的跨距是由敷設遮其上的管道因垂直荷載所產生的允許彎曲撓度決定的,通常為6—9m。如中小型裝置中,小直徑的管道較多時,可在兩根支柱之間設置副梁使管道的跨距縮小。另外,管廊立柱的間距,宜與設備構架支柱的間距取得一致,以便管道通過。如果是混凝土管架,橫梁頂宜埋放一根φ20圓鋼或鋼板,以減少管道與橫梁間的摩擦力。
(3)管廊的高度可根據下面條件確定:
1)橫穿道路的空間。管廊在道路上空橫穿時,其凈空高度為:
①裝置內的檢修道不應小于4.5m;
②工廠道路不應小于5.0m;
③鐵路不應小于5.5m;
④管廊下檢修通道不應小于3m。
當管廊有桁架時要按桁架底高計算。
2)管廊下管道的最小高度。為有效地利用管廊空間,多在管底下布置泵。考慮到泵的操作和維護,至少需要3.5m;管廊上管道與分區設備相接時,一般應比管廊的底層管道標高低或高600~1000mm。所以管廊底層管底標局最小為3.5m。管廊下布置管殼式冷換設備時,由于設備高度增加,需要增加管廊下的凈空。
3)垂直相交的管廊高差。若省廊改變方向或兩管廊直角相交,其高差取決于管道相互連接的最小尺寸,一般以500~750mm為宜。對于大型裝置也可采用1000mm高差。
4)管廊的結構尺寸。在確定省廊高度時,要考慮到管廊橫梁和縱梁的結構斷面和型式,務必使梁底和架底的高度,滿足上述確定管廊高度的要求。對于雙層管廊,上下層間距一般為1.2~2.0m,主要決定于管廊上最大管道的直徑。
5)至于裝置之間的管廊的高度取決于管架經過地區的具體情況。如沿工廠邊緣成罐區,不會影響廠區交通和擴建的地段,從經濟性和檢修方便考慮,可用管墩敷設,離地面高300~500mm即可滿足要求。
管道設計及施工中17大避讓原則
1、小管讓大管:小管繞彎容易,且造價低。
2、分支管讓主干管:分支管一般管徑較小,避讓理由見第1條,另外還有一點,分支管的影響范圍和重要性不如主干管。
3、有壓管讓無壓管(壓力流管讓重力流管):無壓管(或重力流管)改變坡度和流向,對流動影響較大。
4、給水管讓排水管:除了上述第3條原因外,通常排水管管徑大,且水中雜質多。
5、常溫管讓高(低)溫管(冷水管讓熱水管、非保溫管讓保溫管):高于常溫要考慮排氣;低于常溫要考慮防結露保溫。
6、低壓管讓高壓管:高壓管造價高,且強度要求也高。
7、氣體管讓水管:水流動的動力消耗大。
8、金屬管讓非金屬管:金屬管易彎曲、切割和連接。
9、一般管道讓通風管:通風管道體積大,繞彎困難。
10、閥件小的讓閥件多的:考慮安裝、操作、維護等因素。
11、施工簡單的避讓施工難度大的:這是從避免增加安裝難度方面考慮的。
12、工程量小的讓工程量大的:這是從避免增加安裝工程量方面考慮的。
13、技術要求低的管線讓技術要求高的管線:這是從避免增加技術要求難度方面考慮的。
14、檢修次數少的方便的讓檢修次數多的和不方便的:這是從后期維護方面考慮的。
15、非主要管線避讓主要管線:這是從功能重要程度方面考慮的。
16、臨時管線避讓永久管線:這是從管線使用壽命方面考慮的。
17、新建管線避讓已建成的管線:這是從減少造價、工程量和施工難度等方面考慮的。